Villemoisson-sur-Orge (91360) MAISON 6 PIECES - 1019 M2 DE TERRAIN
EXCLUSIVITE - VILLEMOISSON SUR ORGE - 91360
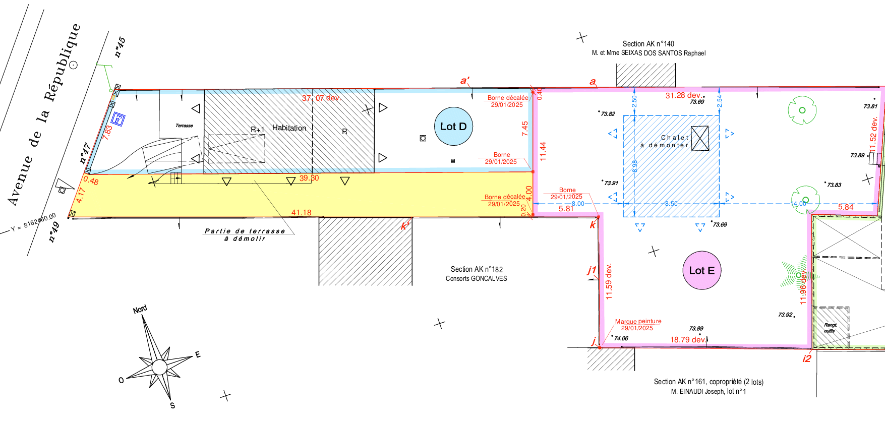
Maison 6 pièces édifiée sur un terrain de 1019 m² (lot D et E) dont une parcelle constructible en lot arrière de 574 m2 (lot E). Voir plan en photo.
Située dans un secteur très recherché, calme et verdoyan, proche de toutes les commodités (à pieds : commerces, mairie, écoles, collège, théatre, médiathèque, dojo, gare de Sainte geneviève des Bois, etc).
Cette maison offre : au rez-de-chaussée : un double séjour avec cuisine ouverte donnant sur la terrasse.
A l’étage : un palier donne accès à 3 chambres et une salle de bain avec WC;
Un palier donne accès à une deuxième partie à l’arrière de la maison pouvant être indépendante ou non, comprenant : une salon/séjour donnant sur terrasse et jardin, une chambre avec placard, une cuisine séparée (pouvant faire office de 5ème chambre) ainsi qu’une salle de bain et un WC.
Un sous-sol d’environ 30m2 vient compléter ce bien.
Laissez-vous séduire par le potentiel de cette maison !
L'Agence Beurdeley reste à votre disposition pour tout complément d'information.
“ Les informations sur les risques auxquels ce bien est exposé sont disponibles sur le site Géorisques : "www.georisques.gouv.fr"
Montant estimé des dépenses annuelles d'énergie pour un usage standard est compris entre 1 710 € et 2 350 € . Prix moyens des énergies indexés sur les années 2021, 2022 et 2023 (abonnements compris).
Les informations recueillies sur ce formulaire sont enregistrées dans un fichier informatisé par La Boite Immo agissant comme Sous-traitant du traitement pour la gestion de la clientèle/prospects de l'Agence / du Réseau qui reste Responsable du Traitement de vos Données personnelles.
La base légale du traitement repose sur l'intérêt légitime de l'Agence / du Réseau.
Elles sont conservées jusqu'à demande de suppression et sont destinées à l'Agence / au Réseau.
Conformément à la loi « informatique et libertés », vous disposez des droits d’accès, de rectification, d’effacement, d’opposition, de limitation et de portabilité de vos données. Vous pouvez retirer votre consentement à tout moment en contactant directement l’Agence / Le Réseau.
Consultez le site https://cnil.fr/fr pour plus d’informations sur vos droits.
Si vous estimez, après avoir contacté l'Agence / le Réseau, que vos droits « Informatique et Libertés » ne sont pas respectés, vous pouvez adresser une réclamation à la CNIL.
Nous vous informons de l’existence de la liste d'opposition au démarchage téléphonique « Bloctel », sur laquelle vous pouvez vous inscrire ici : https://www.bloctel.gouv.fr
Dans le cadre de la protection des Données personnelles, nous vous invitons à ne pas inscrire de Données sensibles dans le champ de saisie libre.
Ce site est protégé par reCAPTCHA, les Politiques de Confidentialité et les Conditions d'Utilisation de Google s'appliquent.
Détails des diagnostics énergétiques
Montant estimé des dépenses annuelles d'énergie pour un usage standard est compris entre 1 710 € et 2 350 € . Prix moyens des énergies indexés sur les années 2021, 2022 et 2023 (abonnements compris).
